- 5760 Saalfelden am Steinernen Meer • Wohnung mieten
Wohnung in sonniger ruhiger Lage zu vermieten!
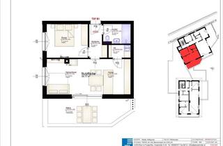
Baujahr 2021 Sehr sonnige ruhige Lage FACTS: "Sonnblick am Gründbichl" in Saalfelden (Wiesing) Wohnfläche: 55,96m² Heizungart: Fußbodenheizung Küche: Tischlerei Freund Vorraum 3,67m² WC 1,55m² Bad 4,77m² AR 2,55m² Zimmer 12,56m² Wohnung 30,86m² GESAMT: 55,96m² Balkon 15,57m² Kellerabteil 5,07m² In meiner mehr anzeigen - 5531 Eben im Pongau • Wohnung mieten
Lichtdurchflutete Neubau 4 Zimmer Wohnung in Sonnenlage in Eben
Die moderne, offene und lichtdurchflutete 118m² Neubau Wohnung besticht durch ihre traumhafte Aussicht und die ruhige Sonnenlage in Eben. Erstbezug. Teilmöbliert mit Küche. Große Sonnenterrasse und Balkon. - 5531 Eben im Pongau • Wohnung mieten
2 Zimmer Neubau Wohnung in Sonnenlage in Eben
Die moderne, offene 50m² Neubau 2 Zimmer-Wohnung besticht durch ihre hochwertige Ausstattung und der ruhigen Sonnenlage in Eben. Erstbezug. Teilmöbliert mit Küche. - 5531 Eben im Pongau • Wohnung mieten
2 Zimmer Neubau Wohnung in Sonnenlage in Eben
Die moderne, offene 50m² Neubau 2 Zimmer-Wohnung besticht durch ihre hochwertige Ausstattung und der ruhigen Sonnenlage in Eben. Erstbezug. Teilmöbliert mit Küche. - 5020 Salzburg • Wohnung mieten
Erstbezug! Nigelnagelneue 2-Zimmer-Wohnung mit Balkon in Maxglan
Erstbezug! In einem modernen Neubau mit nur 7 Wohneinheiten in Maxglan erwartet Sie diese attraktive 2-Zimmer-Wohnung. Die zentrale Lage lässt Sie die Vorzüge der Stadt Salzburg in vollen Zügen genießen: ob kulturelle Veranstaltungen, Restaurants oder Einkaufsmöglichkeiten – alles ist bequem erreichbar. Gleichzeitig mehr anzeigen - Mayrhofweg 16, 5110 Oberndorf bei Salzburg • Penthouse mieten
VILLA WEITBLICK - TOP 3: Neubaujuwel in Oberndorf 4-Zimmer-Penthouse Wohnung mit großzügigem Balkon & Garten
OBJEKTBESCHREIBUNG - TOP 3 - DG Zur Vermietung gelangt eine schöne 4-Zimmer-Penthouse-Wohnung in ruhiger Wohnlage. Die geräumige Wohnung verfügt über einen Vorraum mit eigener Garderobe, Abstellraum, ein großes Wohnzimmer inkl. moderner Einbauküche, ein Badezimmer mit Dusche, WC, Waschbecken und mehr anzeigen - 5020 Salzburg • Wohnung mieten
Erstbezug! Neuwertige 3-Zimmer-Wohnung mit Balkon in Maxglan
Erstbezug! In einem modernen Neubau mit nur 7 Wohneinheiten in Maxglan erwartet Sie diese stilvolle 3-Zimmer-Wohnung. Die zentrale Lage lässt Sie die Vorzüge der Stadt Salzburg in vollen Zügen genießen: ob kulturelle Veranstaltungen, Restaurants oder Einkaufsmöglichkeiten – alles ist bequem erreichbar. Gleichzeitig mehr anzeigen - Ignaz Rieder Kai 71, 5026 Salzburg • Maisonette mieten
Wohnen an der Salzach in Salzburg Stadt -Aigen
Moderne Maisonette-Wohnung mit 92 m² Wohnfläche und großzügigem Außenbereich in Salzburg, Ignaz Rieder Kai 71, zu vermieten. Die Neubau-Wohnung verfügt über eine 28 m² große Terrasse und einen 53 m² großen Garten. Die monatlichen Kosten betragen 1.900 € zuzüglich 220 € Betriebskosten. Eine Kaution von 9.100 € ist zu mehr anzeigen - 5020 Salzburg • Maisonette mieten
Neubau Maisonette Wohnung mit kl. Garten u. sonnigen Terrassen in Ruhelage
Moderne Garten-Maisonette mit 2 sonnigen Terrassen in Salzburg ca. 96 m2 von privat EG: eigener Eingang, offener Wohn-Essbereich mit Einbauküche und Kochinsel, Abstellraum/Arbeitszimmer, Gäste Toilette, Terrasse, kleiner Garten OG: 2 großzügige helle Räume ( 1 davon mit Terrasse) Badezimmer mit Badewanne, DU, WC mehr anzeigen - Virgilgasse, 5020 Salzburg • Wohnung mieten
Moderne 4-Zimmer Neubauwohnung nähe Linzergasse!
Moderne 4-Zimmer-Wohnung mit 72 m² Wohnfläche in der Virgilgasse 8 in Salzburg (5020) zu vermieten. Die Neubau-Wohnung befindet sich im 3. Stock eines 4-stöckigen Gebäudes und ist ab dem 01.01.2026 für eine Mietdauer von 3 Jahren verfügbar. Die monatlichen Kosten betragen € 1.350,-- inkl. € 150,-- Betriebskosten exkl. mehr anzeigen









