- Startseite
- Wien
- 1210 Wien / Floridsdorf
- Scheffelstraße
4 Immobilien nähe Scheffelstraße in 1210 Wien / Floridsdorf
- Scheffelstraße 26, 1210 Wien • Wohnung kaufen
Sanierungsbedürftige 2,5-Zimmer-Wohnung beim Kinzerplatz
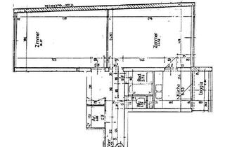
Zum Verkauf gelangt diese sanierungsbedürftige 2,5-Zimmer-Wohnung im 1.Liftstock einer in den 1960er Jahren errichteten Wohnhausanlage nahe der Donaufelderkirche (Kinzerplatz).Sie hat folgende Raumaufteilung: Vorraum, Wohnzimmer mit Zugang in das Schlafzimmer sowie in ein Kabinett. Abstellraum, WC, Badezimmer mit mehr anzeigen - Scheffelstraße, 1210 Wien • Wohnung kaufen
Sanierungsbedürftige 2,5-Zimmer-Wohnung beim Kinzerplatz
Zum Verkauf gelangt diese sanierungsbedürftige 2,5-Zimmer-Wohnung im 1.Liftstock einer in den 1960er Jahren errichteten Wohnhausanlage nahe der Donaufelderkirche (Kinzerplatz). Sie hat folgende Raumaufteilung: Vorraum, Wohnzimmer mit Zugang in das Schlafzimmer sowie in ein Kabinett. Abstellraum, WC, Badezimmer mit mehr anzeigen - Scheffelstraße, 1210 Wien • Wohnung kaufen
NEUBAUWOHNUNG NÄHE ERHOLUNGSGEBIET ALTE DONAU / 500 M ZUM STRAND
TRAUMLAGE-ERHOLUNGSGEBIET ALTE DONAU 500m ZUM STRAND! 21., SCHEFFELSTRASSE 28 Es handelt sich hierbei um eine Eigentumswohnung mit ca. 76 qm + ca. 4 qm Balkon. Das Haus wurde ca. 1980 gebaut und 2012 wurde die Thewosan Sanierung(Wärmedämmung, neue Fenster, neues Dach bzw. Dachterrassen, neues Stiegenhaus, neue mehr anzeigen - Scheffelstraße, 1210 Wien • Wohnung kaufen
NEUBAUWOHNUNG NÄHE ERHOLUNGSGEBIET ALTE DONAU / 500 M ZUM STRAND
TRAUMLAGE-ERHOLUNGSGEBIET ALTE DONAU 500m ZUM STRAND! 21., SCHEFFELSTRASSE 28 Es handelt sich hierbei um eine Eigentumswohnung mit ca. 76 qm + ca. 4 qm Balkon. Das Haus wurde ca. 1980 gebaut und 2012 wurde die Thewosan Sanierung(Wärmedämmung, neue Fenster, neues Dach bzw. Dachterrassen, neues Stiegenhaus, neue mehr anzeigen - provisionsfreivergebenGesehen
1210 Wien • Wohnung mieten4 Zimmer Wohnung bei der alten Donau mit Loggia und Garage




