- Startseite
- Steiermark
- Graz-Stadt
- Zweiglgasse
2 Immobilien nähe Zweiglgasse in Graz-Stadt
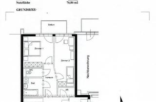
- Nähe Augarten, 8020 Graz • Wohnung mieten*77m2 helle 3-Zimmerwohnung mit Balkon und Lift Nähe Augarten - ZweiglgasseEs steht eine helle 3-Zimmer-Mietwohnung in Graz in der Zweiglgasse 11 im 2. OG zur Verfügung. Die Wohnung überzeugt durch ihre praktische Raumaufteilung, Balkon, Kellerabteil und Tiefgaragenplatz - ideal für Paare, kleine Familien oder Singles, die modernes Wohnen in zentraler Lage suchen. Raumaufteilung: mehr anzeigen
- Zweiglgasse 14/11, 8020 Graz • Wohnung mieten* 3 Zimmerwohnung Graz Nähe Citypark mit Innenhofbalkon - Zweiglgasse*Ab sofort steht eine helle 3-Zimmer-Mietwohnung in Graz in der Zweiglgasse zur Verfügung. Die Wohnung überzeugt durch ihre praktische Raumaufteilung, Balkon, Kellerabteil und Tiefgaragenplatz - ideal für Paare, kleine Familien oder Singles, die modernes Wohnen in zentraler Lage suchen. Raumaufteilung: Wohn-Esszimmer mehr anzeigen
- provisionsfreivergebenGesehen
Zweiglgasse, 8020 Graz • Wohnung mieten2er-WG Nähe Augarten zu vermieten
Sehr gut aufgeteilte 2er-WG Nähe Augarten sucht neue Herausforderungen. Aufteilung: Vorraum 2 getrennt begehbare Zimmer Küche mit Zugang zum Innenhofbalkon Bad mit Dusche und Fenster WC mit Waschbecken Balkon Kellerabteil Die angegebene Bruttomiete versteht sich inkl. Betriebskosten, ohne Heizkosten und Strom! mehr anzeigen - provisionsfreivergebenGesehen
Zweiglgasse, 8020 Graz • Wohnung mieten2er-WG Nähe Augarten zu vermieten
Keine Beschreibung - provisionsfreivergebenGesehen
Zweiglgasse 10, 8020 Graz • Maisonette mieten2 ZIMMER-Altbau + ruhiger Balkon + extra Küche möbliert + neuwertiges Bad mit Dusche / WC / Fenster!
Provisionsfrei: 2 ZIMMER-Altbau (2 Zi. getr, begehbar), ruhiger Balkon 4,2m², extra Küche möbliert mit Fenster (neuwertig), neuwertiges bzw. großes Bad mit bodentiefer Dusche / WC / Fenster und WM-Anschluss, Abstellraum, Vorraum, nähe Augarten bzw. ÖGK! Auf einer Wohnfläche von ca. 56m² verteilen sich in der mehr anzeigen


