- Startseite
- Wien
- 1220 Wien / Donaustadt
- Mietwohnungen
172 Möblierte Mietwohnungen im Bezirk 1220 Wien / Donaustadt
- Ludwig-Reindl-Gasse, 1220 Wien • Genossenschaftswohnung
4 Zimmer Genossenschafts Wohnung (SozialbauAG)
• Die Wohnung wurde erst 2019 erbaut • Bezugsfertig • Voll möbeliert • Außenjalousien • Insektenschutznetze überall • Klimaanlage • Blick auf Innenhof, sehr ruhig - In Gehweite: Hofer, Penny, Bipa, Billa, Arzt, Apotheke - Trondheimgasse, 1220 Wien • Wohnung mieten
Sonnige Wohnung mit Balkon , Weitblick & top-Anbindung
Sonniger Single- oder Pärchenhit mit Balkon, Weiitblick & Top-Anbindung € 1.040 / Monat (inkl. BK, Heizung & Warmwasser) Wohnfläche: ca. 55 m² | Balkon: ca. 10 m² | Zimmer: 2 | Etage: 6. OG (mit Lift) Befristung: 5 Jahre (langfristig erwünscht) | Einzug: ab Dezember | Keine Provision! Voll möblierte mehr anzeigen - Portnergasse, 1220 Wien • Wohnung mieten
Traumhafte, voll möblierte 2-Zimmer-Wohnung mit großzügiger Loggia
Diese helle und perfekt aufgeteilte 2-Zimmer-Wohnung im "WOHNPARK ERZHERZOG CARL" bietet höchsten Wohnkomfort. Die Wohnung wird komplett möbliert übergeben – inklusive hochwertiger Massivholzmöbel der Premiummarke Team 7. Sie müssen nur noch Ihre Koffer packen!Objektbeschreibung & RaumaufteilungSie betreten die mehr anzeigen - 1220 Wien • Wohnung mietenDanubeflats: möblierte LuxuswohnungDie lichtdurchflutete, sehr geräumige, komplett möblierte 2-Zi.-Luxuswohnung überzeugt durch einen intelligenten Grundriss, höchsten Komfort, erstklassiges Service und exklusive Annehmlichkeiten. Ein perfektes Zuhause für Singles und Paare, eignet sich auch hervorragend als Zweitwohnsitz für all jene, die außerhalb mehr anzeigen
- 1220 Wien • Wohnung mieten
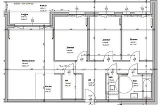
PRÄCHTIGE 4 ZIMMER-WOHNUNG - KÜCHE + 2 BÄDER + 2 TERRASSEN + FITNESSRAUM - ATTEMSGARTEN
In diesem top-modernen Neubau kommt diese knapp 100 m2 große 4-Zimmer-Wohnung mit zwei Terrassen von knapp 23 m2 zur Vermietung. Die ab 01.09.2025 beziehbare Wohnung liegt im 5. Liftstock und ist ostseitig ausgerichtet. Der Lift lässt Sie barrierefrei Ihr zukünftiges Heim erreichen. In unmittelbarer Nähe zur Wagramer mehr anzeigen - 1220 Wien • Wohnung mietenPRÄCHTIGE 4 ZIMMER-WOHNUNG - KÜCHE + 2 BÄDER + 2 TERRASSEN + FITNESSRAUM - ATTEMSGARTENIn diesem top-modernen Neubau kommt diese knapp 100 m2 große 4-Zimmer-Wohnung mit zwei Terrassen von knapp 23 m2 zur Vermietung. Die ab 01.09.2025 beziehbare Wohnung liegt im 5. Liftstock und ist ostseitig ausgerichtet. Der Lift lässt Sie barrierefrei Ihr zukünftiges Heim erreichen. In unmittelbarer Nähe zur Wagramer mehr anzeigen
- Schüttaustraße 68, 1220 Wien • Wohnung mieten
Helle Dachgeschoßwohnung (48m²)
2 Zimmer, teilmöbliert, in Kaisermühlen Schüttaustrasse, bezugsfertig. Küche, WC, Bad, Lift vorhanden. Hoher Freizeitwert, gute öffentliche Anbindung (20 Min. ins Zentrum). Ideal für 1-2 Personen. - Tokiostraße, 1220 Wien • Maisonette mieten
Tokiostraße / Kirschblütenpark: VIS / Japanische Schule: Möblierte 4 Zimmer-Maisonetten-Wohnung mit einer Loggia und Terrasse + optionaler Garagenstellplatz!
Zur Vermietung ab Februar 2026 gelangt hier eine möblierte 4 Zimmer - Maisonetten - Wohnung mit viel Freifläche und optionalem Garagenstellplatz! Die Wohnung ist sehr gut gelegen und sehr gut aufgeteilt. Es wir möbliert vermietet. Im unteren Bereich befindet sich die großzügige Wohnküche, zwei AbstellräumeAbstellraum, mehr anzeigen - Tokiostraße, 1220 Wien • Maisonette mieten
Tokiostraße / Kirschblütenpark: VIS / Japanische Schule: Möblierte 4 Zimmer-Maisonetten-Wohnung mit einer Loggia und Terrasse + optionaler Garagenstellplatz!
Zur Vermietung ab Februar 2026 gelangt hier eine möblierte 4 Zimmer - Maisonetten - Wohnung mit viel Freifläche und optionalem Garagenstellplatz! Die Wohnung ist sehr gut gelegen und sehr gut aufgeteilt. Es wir möbliert vermietet.Im unteren Bereich befindet sich die großzügige Wohnküche, zwei AbstellräumeAbstellraum, mehr anzeigen - 1220 Wien • Penthouse mieten
Rent 1-6 Months! Luxury Living! Penthouse! Skyline+Kahlenberg View! Terrasse! Garage!
WOHNLANDSCHAFT KRAUTGARTEN.Luxury Living! Penthouse! Skyline+Kahlenberg View! Terrasse! Garage!Scroll down and find the English version!In idyllischer Ruhelage gelangt in einem absolut luxuriösen und stylischen Neubau, welcher 2025 fertiggestellt wurde ein südseitig ausgerichtetes und voll möbliertes Penthouse mit mehr anzeigen









