- Startseite
- Wien
- 1210 Wien / Floridsdorf
- Schlimpweg
3 Immobilien nähe Schlimpweg in 1210 Wien / Floridsdorf
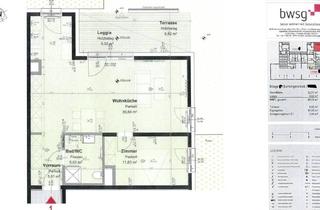
- Am Schlimpweg 3, 1210 Wien • Wohnung mietenModerne 2‑Zimmer‑Gartenwohnung mit Großer Terrasse in Ruhelage am Schlimpweg 3 zu Vermieten.Diese moderne 2‑Zimmer‑Erdgeschosswohnung liegt in einer 2019 fertiggestellten Wohnhausanlage der BWSG und verbindet hochwertige Ausstattung mit großzügigen Freiflächen in absoluter Ruhelage. Die rund 39,8 m² große Wohnküche mit Parkettboden bildet das Herzstück der Wohnung und bietet direkten Zugang zur Terrasse mehr anzeigen
- Am Schlimpweg, 1210 Wien • Wohnung mieten
Erdgeschosswohnung mit 12m² großer Terrasse und 90m² Garten in Ruhelage zu vermieten
SELTENE GELEGENHEIT: Erdgeschosswohnung mit 12m² großer Terrasse und 90m² Garten in Ruhelage zu vermieten Diese moderne 2-Zimmer-Wohnung überzeugt nicht nur durch ihre hochwertige Ausstattung, sondern auch durch ihre ideale Lage und großzügige Terrasse samt Garten. Sie ist bequem zu Fuss erreichbar und besticht durch mehr anzeigen - Schlimpweg, 1210 Wien • Wohnung mieten
Dachgeschosswohnung mit großer Terrasse zu vermieten
SELTENE GELEGENHEIT: 2-ZIMMER-WOHNUNG MIT GROSSER TERRASSE UND MÖBLIERTER KÜCHE Diese moderne 2-Zimmer-Wohnung im 2 Stock überzeugt nicht nur durch ihre hochwertige Ausstattung, sondern auch durch ihre ideale Lage und großzügige Terrasse. Sie ist bequem mit dem Personenaufzug erreichbar und besticht durch einen mehr anzeigen - vergebenGesehen
1210 Wien • Wohnung kaufenSELTENE GELEGENHEIT: 3-ZIMMER-WOHNUNG MIT GROSSER TERRASSE, SÜD-WEST-AUSRICHTUNG UND MÖBLIERTER KÜCHE! JETZT ANFRAGEN
- vergebenGesehen
1210 Wien • Wohnung kaufenSELTENE GELEGENHEIT: 3-ZIMMER-WOHNUNG MIT GROSSER TERRASSE, SÜD-WEST-AUSRICHTUNG UND MÖBLIERTER KÜCHE! JETZT ANFRAGEN
- provisionsfreivergebenGesehen
1210 Wien • Wohnung mietenProvisionsfrei sonnige 3 Zimmer Wohnung
- vergebenGesehen
1210 Wien • Wohnung kaufenSELTENE GELEGENHEIT: 3-ZIMMER-WOHNUNG MIT GROSSER TERRASSE, SÜD-WEST-AUSRICHTUNG UND MÖBLIERTER KÜCHE! JETZT ANFRAGEN
- vergebenGesehen
1210 Wien • Wohnung kaufenSELTENE GELEGENHEIT: 3-ZIMMER-WOHNUNG MIT GROSSER TERRASSE, SÜD-WEST-AUSRICHTUNG UND MÖBLIERTER KÜCHE! JETZT ANFRAGEN



