- Startseite
- Wien
- 1020 Wien / Leopoldstadt
- Nordbahnstraße
- Gastronomiebetriebe
2 Gastronomiebetriebe nähe Nordbahnstraße in 1020 Wien / Leopoldstadt
- Nordbahnstraße 41, 1020 Wien • Gastronomiebetrieb mieten
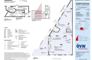
Dein Traum-Gastrolokal am ehemaligen Nordbahnhof.
Nordbahnstraße 41 / BF 1 / 1B, 1020 Wien (Objekt Nr. 05725) Diese großzügige Gewerbefläche in der Bruno-Marek-Allee bietet individuell anpassbare 276 m² für dein gastronomisches Konzept. Dazu gehört ein gemütlicher Schanigarten mit 120 m² und eine zusätzliche Kellerfläche von 37 m². Hier kannst du deine kulinarische mehr anzeigen - Nordbahnstraße 37, 1020 Wien • Gastronomiebetrieb mieten
Dein Traum-Gastrolokal am ehemaligen Nordbahnhof.
Nordbahnstraße 37 / BF 1 / 1A, 1020 Wien (Objekt Nr. 05727) Diese großzügige Gewerbefläche in der Bruno-Marek-Allee bietet individuell anpassbare 164 m² für dein gastronomisches Konzept. Dazu gehört ein gemütlicher Schanigarten mit 33 m² und eine zusätzliche Kellerfläche von 17 m². Hier kannst du deine kulinarische mehr anzeigen

