- Startseite
- Niederösterreich
- Maisonette zu mieten
76 Maisonette zu mieten in Niederösterreich
- 3204 Kirchberg an der Pielach • Maisonette mieten
Top Maisonettenwohnung mit Dachterrasse, Garten und Carport!
Zur Vermietung gelangt eine Maisonettenwohnung auf drei Geschosse mit eigenem Garten und Carport.Diese Immobilie verfügt über124 m² Wohnfläche, 42 m² Dachterrasse44,52 m² GartenCarport und einen ebenerdigen Lagerraum. Die Ausstattung ist als exklusiv zu bezeichnen!Diese schöne Immobilie verteilt sich mehr anzeigen - 2230 Gänserndorf • Maisonette mieten
15496 Maisonettewohnung!
Zur Vermietung gelangt eine Wohnung mit 2 Terrassen in Gänserndorf. Die Wohnfläche von ca. 76 m² unterteilt sich in Wohnzimmer mit Kochnische und Ausgang auf die Terrasse, Vorraum, Abstellraum mit Waschmaschinenanschluss, WC in der ersten Ebene. Über eine Holztreppe gelangt man in das Dachgeschoß mit einem großen mehr anzeigen - Anton Haidinger Siedlung, 3153 Rotheau • Maisonette mieten
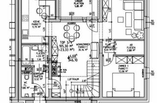
Moderne Maisonette in Rotheau: Geräumige 4-Zimmer-Wohnung mit Loggia
Willkommen in Ihrem neuen Zuhause in Rotheau, einer charmanten Gemeinde in Niederösterreich. Hier erwartet Sie eine großzügige und gepflegte 4-Zimmer-Maisonettewohnung mit einer Wohnfläche von 105,66 m², die ausreichend Platz für Ihre individuellen Wohnbedürfnisse bietet.Auf der ersten Ebene befinden sich ein mehr anzeigen - 2340 Mödling • Maisonette mieten
Sehr gepflegte möblierte Maisonette mit Gartennutzung
Ab sofort gelangt diese hübsche Wohnung mit großzügigem Garten in einem kleinen 3 Parteienhaus zur Vermietung. Eine moderne Ausstattung, lichtdurchflutete Architektur und eine hochwertige Qualität runden dieses besondere Angebot ab.Die Wohnung verfügt über:Erdgeschoss:Kleines Vorzimmer mit Stauraumeine offene moderne mehr anzeigen - Kirchbichl, 3691 Nöchling • Maisonette mieten
Nöchling - herrliche 3 Zimmer Maisonettewohnung mit eigenem Badeteich
Mitten im charmanten Wohlfühlort Nöchling befindet sich diese attraktive geförderte 3-Zimmer-Wohnung. Dank der durchdachten Raumaufteilung und der angenehmen Größe eignet sie sich ideal für Paare oder kleine Familien.Die Wohnung verfügt über rund 74 m² Wohnfläche und überzeugt durch eine helle und freundliche mehr anzeigen - Hauptstrasse 52, 3013 Tullnerbach-Lawies • Maisonette mieten
Sonnige Gartenmaisonette
Charmante Maisonettewohnung in kleiner Hausgemeinschaft im Erholungsgebiet Wienerwald. Die Wohnung verfügt über 3 Räume, sowie Küche und Bad. Ebene 1: Wohnzimmer, Küche Ebene 2: 1 Schlafzimmer, Bad und Zimmer mit Ausgang auf Gartenterrasse Kaution: 3MM Es ist eine sehr gute Infrastruktur gegeben - 3 Gehminuten zur mehr anzeigen - Westbahnstraße, 3382 Loosdorf • Maisonette mieten
4 Zimmer Dachgeschoss-Maisonettewohnung in Loosdorf (Kaufoption)
Wenn Sie auf der Suche nach einer modernen und geräumigen Immobilie in einer ruhigen Umgebung sind, dann sollten Sie sich diese fantastische 4-Zimmer-Maisonette-Wohnung in Loosdorf nicht entgehen lassen.Die schöne Maisonettewohnung bietet ca. 85m² Wohnfläche und eine Dachterrasse mit ca. 12m².Vom Vorzimmer aus gelangt mehr anzeigen - 2500 Baden • Maisonette mieten
*Neu sanierte / teils Erstbezugs-Wohnungen im Herzen von Baden, diverse Größen*
Im Herzen von Baden - gut gelegen und dennoch sehr ruhig hatten wir 9 Wohnungen in diesem komplett neu sanierten, wunderschönen Haus zu vergeben. Es steht nun noch 1 Wohnung zu Verfügung. In der Größe 3 Zimmer - rd 113m². Maisonette-Wohnung im Dachgeschoss mit Klimaanlage und Fußbodenheizung: 2,5 Schlafzimmer, mehr anzeigen - Steinfeldgasse 27-33, 2020 Hollabrunn • Maisonette mieten
zur Miete: Exklusive 5 Zimmer-Maisonette mit Sonnenterrassen
Idyllisch gelegen in Hollabrunn erwartet Sie diese moderne Dachgeschoss-Maisonette. Die 2024 fertiggestellte 5 Zimmer-Wohnung überzeugt mit hellen, offen gestalteten Räumen, beeindruckenden Raumhöhen und einer durchdachten Architektur.Ein besonderes Highlight sind die beiden Dachterrassen mit insgesamt rund 94 m² mehr anzeigen - 2481 Achau • Maisonette mieten
LAXENBURG NÄHE - "FRÜHLINGSGEFÜHLE AUF DER DACHTERRASSE!" - !" - Wunderschöne Maisonette-Wohnung mit 16m² Dachterrasse
Wohnen wie im Haus: Wunderschöne 2 Zimmer-Maisonette-Wohnung mit Hauscharakter und 58,32m² Wohnfläche zuzüglich 15,47m² Terrasse im ersten Stock einer im Jahre 2009 errichteten kleinen Wohnhausanlage mit nur 7 Wohnungen im Ortskern von Achau gelegen. Diese moderne Wohnung hat ein perfektes Raumkonzept und begeistert mehr anzeigen









