- Startseite
- Salzburg
- Sankt Johann im Pongau
- Eben im Pongau
- Mietwohnungen
6 Mietwohnungen in der Gemeinde Eben im Pongau
- 5531 Eben im Pongau • Wohnung mieten
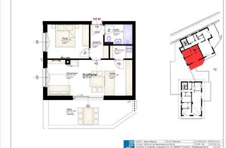
2 Zimmer Neubau Wohnung in Sonnenlage in Eben
Die moderne, offene 50m² Neubau 2 Zimmer-Wohnung besticht durch ihre hochwertige Ausstattung und der ruhigen Sonnenlage in Eben. Erstbezug. Teilmöbliert mit Küche. - 5531 Eben im Pongau • Wohnung mieten
2 Zimmer Neubau Wohnung in Sonnenlage in Eben
Die moderne, offene 50m² Neubau 2 Zimmer-Wohnung besticht durch ihre hochwertige Ausstattung und der ruhigen Sonnenlage in Eben. Erstbezug. Teilmöbliert mit Küche. - 5531 Eben im Pongau • Wohnung mieten2 Zimmer Neubau Wohnung in Sonnenlage in EbenDie moderne, offene 50m² Neubau 2 Zimmer-Wohnung besticht durch ihre hochwertige Ausstattung und der ruhigen Sonnenlage in Eben. Erstbezug. Teilmöbliert mit Küche. weitere Informationen: Balkon, Terrasse, Keller, Duschbad, Einbauküche, Gäste-WC, Parkett, Fliesen Bemerkungen: Neue, hochwertige Ausstattung, Holz Alu mehr anzeigen
- 5531 Eben im Pongau • Wohnung mieten
Lichtdurchflutete Neubau 4 Zimmer Wohnung in Sonnenlage in Eben
Die moderne, offene und lichtdurchflutete 118m² Neubau Wohnung besticht durch ihre traumhafte Aussicht und die ruhige Sonnenlage in Eben. Erstbezug. Teilmöbliert mit Küche. Große Sonnenterrasse und Balkon. - 5531 Eben im Pongau • Wohnung mietenLichtdurchflutete Neubau 4 Zimmer Wohnung in Sonnenlage in EbenDie moderne, offene und lichtdurchflutete 118m² Neubau Wohnung besticht durch ihre traumhafte Aussicht und die ruhige Sonnenlage in Eben. Erstbezug. Teilmöbliert mit Küche. Große Sonnenterrasse und Balkon. weitere Informationen: Balkon, Terrasse, Keller, Vollbad, Duschbad, Einbauküche, Gäste-WC, Parkett, Fliesen mehr anzeigen
- 5531 Eben im Pongau • Wohnung mieten
Moderne 2-Zimmer-Gartenwohnung
Neubau Gartenwohnung mit WohlfühlfaktorDiese moderne 2-Zimmer-Gartenwohnung in einer 2023 errichteten Wohnanlage überzeugt durch durchdachtes Design, hochwertige Ausstattung und ein angenehmes Wohnambiente in naturnaher Lage. Auf rund 64 m² Wohnfläche erwartet Sie ein offenes, lichtdurchflutetes Raumkonzept mit mehr anzeigen - provisionsfreivergebenGesehen
5531 Eben im Pongau • Wohnung mieten2 Zimmer Neubau Wohnung in Sonnenlage in Eben
Die moderne, offene 50m² Neubau 2 Zimmer-Wohnung besticht durch ihre hochwertige Ausstattung und der ruhigen Sonnenlage in Eben. Erstbezug. Teilmöbliert mit Küche. weitere Informationen: Balkon, Terrasse, Keller, Duschbad, Einbauküche, Gäste-WC, Parkett, Fliesen Bemerkungen: Neue, hochwertige Ausstattung, Holz Alu mehr anzeigen - provisionsfreivergebenGesehen
5531 Eben im Pongau • Wohnung mietenLichtdurchflutete Neubau 4 Zimmer Wohnung in Sonnenlage in Eben
Die moderne, offene und lichtdurchflutete 118m² Neubau Wohnung besticht durch ihre traumhafte Aussicht und die ruhige Sonnenlage in Eben. Erstbezug. Teilmöbliert mit Küche. Große Sonnenterrasse und Balkon. weitere Informationen: Balkon, Terrasse, Keller, Vollbad, Duschbad, Einbauküche, Gäste-WC, Parkett, Fliesen mehr anzeigen - provisionsfreivergebenGesehen
5531 Eben im Pongau • Wohnung mietenLichtdurchflutete Neubau 4 Zimmer Wohnung in Sonnenlage in Eben
Die moderne, offene und lichtdurchflutete 118m² Neubau Wohnung besticht durch ihre traumhafte Aussicht und die ruhige Sonnenlage in Eben. Erstbezug. Teilmöbliert mit Küche. Große Sonnenterrasse und Balkon.






