- Startseite
- Niederösterreich
- Sankt Pölten-Land
- Hafnerbach
- Mietwohnungen
1 3-Zimmer Mietwohnungen in der Gemeinde Hafnerbach
- Hohenegger Straße, Hafnerbach, 3386 Hafnerbach • Wohnung mieten
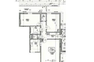
Hafnerbach – schöne, geförderte 3 Zimmer-Wohnung
Im romantischen Ort Hafnerbach (Nähe St. Pölten) liegt unsere charmante Gartenwohnung.Die schöne 3 Zimmerwohnung bietet ca. 71,08m² Wohnfläche, eine Terrasse und einen Eigengarten.Vom geräumigen Wohnzimmer gelangt man auf die herrliche Terrasse und in den Garten. Hier lässt es sich garantiert optimal entspannen, das mehr anzeigen - provisionsfreivergebenGesehen
3386 Hafnerbach • Wohnung mietenSchöne 3 Zimmerwohnung im romantischen Ort Hafnerbach
- provisionsfreivergebenGesehen
3386 Hafnerbach • Wohnung mietenSchöne 3 Zimmerwohnung im romantischen Ort Hafnerbach
