AC6A54C9-EA39-4D6C-BD74-472916CB3EFF@1.00x Created with sketchtool. 087EE575-194D-475D-8871-977C640EA21D@1.00x Created with sketchtool.
Kaufpreis
auf Anfrage
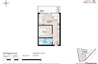
Wohnfläche
43 m²
Zimmer
2
6284 Ramsau im Zillertal • Wohnung kaufen • finden.at - Prio

Neubauprojekt ,,VISAVIS'' Ramsau im Zillertal

  • Neubau
Kaufpreis
auf Anfrage
Wohnfläche
43 m²
Zimmer
2
Lage: Das Neubauprojekt befindet sich in zentraler Lage in der Gemeinde Ramsau im Zillertal, direkt an der Talstraße (B169). Die Anbindung an den öffentlichen Verkehr sowie die regionale Infrastruktur ist sehr gut: Nahversorger, Gastronomie, Schule und Bahnhof sind in wenigen Minuten erreichbar. Die umliegende Natur- und Berglandschaft sowie die Nähe zu bekannten Tourismusorten machen den Standort gleichermaßen attraktiv für Wohnen, Arbeiten und Vermieten.
Adresse: Bitte kontaktieren sie den Anbieter um die Anschrift zu erfahren.
Immobilientyp: Wohnung kaufen
Online seit: 10.10.2025
Finanzierung vorbereiten
Kreditdauer
  • 15 Jahre
  • 20 Jahre
  • 25 Jahre
  • 30 Jahre
  • 35 Jahre

% Nebenkosten

% Zinsen

% Kaufpreis

/ Monat

/ Monat

/ Monat

€ *
pro Monat
Angebote einholen

* errechnete Monatsrate bei einem angenommenen Effektivzins von 0.8% p.a. Die Berechnung stellt eine unverbindlichen Richtwert dar un dist von der Bonität, Kredithöhe, Laufzeit, Verwendungszweck und Besicherung abhängig.

x
Problem melden
Was möchtest du melden?
Suchverlauf
4194304