AC6A54C9-EA39-4D6C-BD74-472916CB3EFF@1.00x Created with sketchtool. 087EE575-194D-475D-8871-977C640EA21D@1.00x Created with sketchtool.
Miete / Monat
€ 892,-
€ 13,- / m²
Wohnfläche
68 m²
Zimmer
3
Mohsgasse 4, 8020 Graz • Wohnung mieten • schwarzesbrett.oeh.ac.at

LEND: 3 ZIMMER-Altbau + ruhiger Balkon 12m² + Einbauküche + Bad mit Dusche + extra WC + Lift + beim Hauptbahnhof bzw. nähe FH-Joanneum!

  • Altbau
  • möbliert
  • Balkon
  • unbefristet
Miete / Monat
€ 892,-
€ 13,- / m²
Wohnfläche
68 m²
Zimmer
3
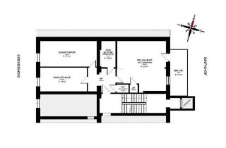
LEND: 3 ZIMMER-Altbau + großer bzw. ruhiger Balkon 12m² + Einbauküche + Bad mit Dusche + extra WC mit Waschbecken + Lift + beim Hauptbahnhof bzw. nähe FH-Joanneum!Auf einer Wohnfläche von ca. 68,1m² verteilen sich in der Mohsgasse unweit vom Hauptbahnhof bzw. nähe FH-Joanneum im 2. Obergeschoß mit Lift perfekt wie folgt: 3 Zimmer, davon 1 größeres Wohn- Esszimmer ca. 23m² mit großen bzw. ruhigen Balkon 12m² und möblierter Einbauküche inkl. Geschirrspüler etc. - Innenhof (getr. begehbar), 2 ... mehr anzeigen
Adresse: Mohsgasse 4, Graz
Immobilientyp: Wohnung mieten
Online seit: 12.08.2025
x
Problem melden
Was möchtest du melden?
Suchverlauf
4194304